Zur Navigation wechseln Zum Inhalt wechseln Zum Footer wechseln
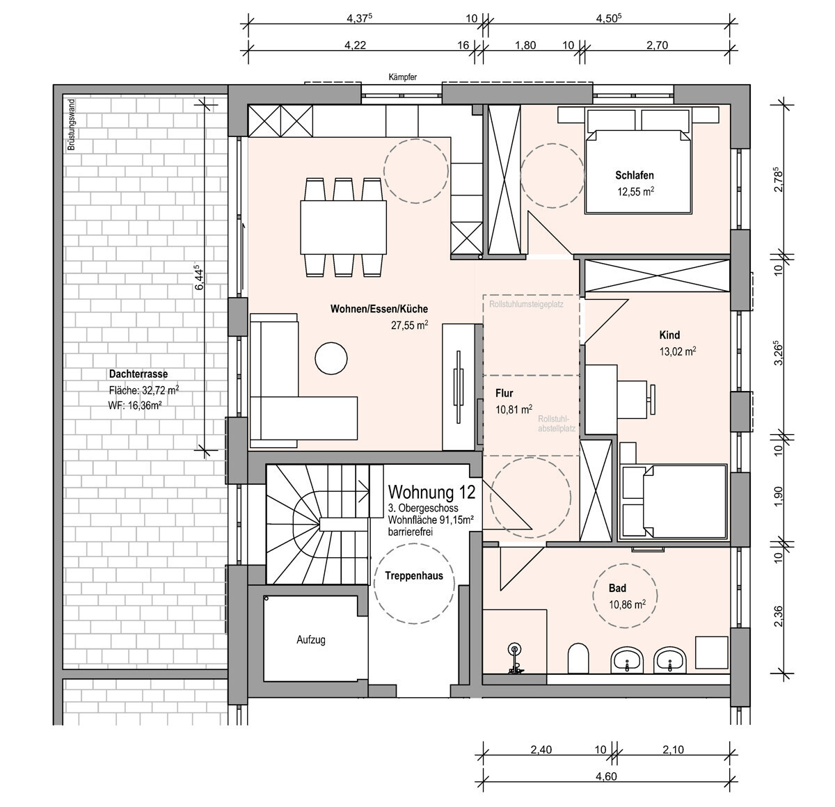
Dachterrasse

NUR NOCH 1 WOHNUNG FREI – Penthouse – QNG zertifiziert (KfW40) – Neubau/Erstbezug in Roßfeld

Kaufpreis: 420.000,00 €

Technische Angaben

ImmoNr
16931_13

Kategorie

Objektart
Wohnung
Objekttyp
Penthouse
Nutzungsart
Wohnen
Vermarktungsart
Kauf

Geografische Angaben

Ort
Crailsheim
Land
Deutschland
Etage
3.OG

Flächen

Wohnfläche
ca. 91 m²
Anzahl Zimmer
3
Anzahl Schlafzimmer
2
Anzahl Badezimmer
1
Anzahl Balkone
1

Ausstattung

Balkon
Befeuerung
Fernwärme
Fahrstuhl
Personenaufzug

Preise

Kaufpreis
420.000,00 €
Außen-Provision
keine zusätzliche Käuferprovision

Beschreibung

**Keine zusätzliche Käuferprovision**

Wir bieten Ihnen hier 13 attraktive Neubauwohnungen in einem Mehrfamilienhaus in Roßfeld zum Kauf an. Die Wohnungen sind alle sehr großzügig geschnitten und bieten somit viel Platz für individuelle Gestaltungsmöglichkeiten. Die Wohnungen ermöglichen auch im hohen Alter ein tolles Wohnerlebnis. Ob für junge Familien, Singles, Paare oder barrierefreies Wohnen im Alter – Hier entsteht ein breites Angebot.

Diese noch freie 3-Zimmer-Penthousewohnung mit ca. 91 qm Wohnfläche befindet sich im 3. Obergeschoss der Wohnanlage mit Aufzug und Hausmeistervollservice. Die exklusive Innenausstattung lässt keine Wünsche offen: Dachterrasse mit herrlicher Aussicht in Südwest-Ausrichtung, Hebe-/Schiebetürelement auf die Dachterrasse, hochwertige Vinylböden in den Wohn- und Schlafzimmern sowie Fliesen (60×60 cm) im Badezimmer, bodenebene Dusche, 3-fach verglaste, teils bodentiefe Fenster mit elektrischen Rollläden, Fußbodenheizung mit Einzelraumsteuerung, Videosprechanlage, hohe Raumhöhen, PV-Anlage (10,8 kW) u. v. m.

Ihr Auto stellen Sie bequem auf einen Carport-Stellplatz: 17.500 € zuzüglich (gegen Aufpreis inkl. Wallbox).

Ausstattung:

-5 Jahre Gewährleistung nach BGB ab Bauabnahme

-Klimafreundlicher Neubau QNG zertifiziert nach KfW40 NH mit zinsgünstigen Darlehen über die KfW (2,1 % gesichert)

-Heizungsart: Fernwärme

-Fußbodenheizung mit Einzelraumsteuerung

-Schallschutz nach DIN 4109

-Personenaufzug

-Videosprechanlage

-Dachterrasse mit Hebe-/Schiebetürenelement

-3-fach verglaste Fenster inkl. elektrischen Rollläden

-Tageslichtbad: ebenerdige Dusche, zwei Waschbecken, WC, Handtuchheizkörper

-hochwertige Vinylböden

-zzgl. Carport-Stellplatz: 17.500 € (gegen Aufpreis inkl. Wallbox)

-Stellplatz für Fahrräder und Mülltonnen

-im Kaufpreis enthalten: gesamte Architektenleistungen, Sonderleistungen aller benötigten Fachingenieure + Statikers und Hausanschlusskosten + PV-Anlage

Ausstattung

-5 Jahre Gewährleistung nach BGB ab Bauabnahme
-Klimafreundlicher Neubau QNG zertifiziert nach KfW40 NH mit zinsgünstigen Darlehen über die KfW (2,1 % gesichert)
-Heizungsart: Fernwärme
-Fußbodenheizung mit Einzelraumsteuerung
-Schallschutz nach DIN 4109
-Personenaufzug
-Videosprechanlage
-Dachterrasse mit Hebe-/Schiebetürenelement
-3-fach verglaste Fenster inkl. elektrischen Rollläden
-Gefliestes Badezimmer mit Sanitärausstattung: ebenerdige Dusche, Waschbecken und WC
-hochwertige und pflegeleichte Vinylböden
-hohe Raumhöhen
-PV-Anlage mit 10,8 kW (direkt dem Zählerschrank der Wohnung zugeordnet)
-Carport-Stellplatz: 17.500,00 € zuzüglich (gegen Aufpreis inkl. Wallbox)
-Stellplatz für Fahrräder und Mülltonnen
-im Kaufpreis enthalten: gesamte Architektenleistungen, Sonderleistungen aller benötigten Fachingenieure + Statikers und Hausanschlusskosten

Lage

Das neue Wohngebiet „Heckenbühl“ liegt südlich des Gewerbegebiets „Hofwiesen“ in Roßfeld ca.
3 km westlich des Stadtzentrums Crailsheim. Die ausgezeichnete Infrastruktur bietet verschiedene Einkaufsmöglichkeiten, Apotheke, Ärzte, verschiedene Dienstleistungen im nahen Umkreis, alles zu Fuß oder mit dem Fahrrad erreichbar. Kindergarten, Grundschule und weiterführende Schulen sowie ein Sportverein sind ebenfalls fußläufig zu erreichen. Jedes Familienmitglied findet hier sein Freizeitvergnügen, ob Spielplätze für die Kleinsten, Sportstätten und ein Schwimmbad. Mit traditionellen Festen ist für Abwechslung gesorgt. Das fränkische Volksfest mit seinen Festumzügen ist weit über die Region bekannt. Aber auch mit dem Kulturwochenende, dem Stadtfeiertag, dem Goldbacher Lichterfest sind für alle Familienmitglieder erlebnisreiche Tage gegeben.

Energieausweis

A+
< 30
A
30 – 50
B
50 – 75
C
75 – 100
D
100 – 130
E
130 – 160
F
160 – 200
G
200 – 250
H
> 250
Baujahr lt. Energieausweis
2024
Endenergiebedarf
28,7 kWh/(m²a)
Energieausweis
Bedarfsausweis
Energieausweis gültig bis
14.06.2034
Energieeffizienzklasse
A+
wesentlicher Energieträger
Fernwärme

Ihre Anfrage zu der Immobilie „NUR NOCH 1 WOHNUNG FREI – Penthouse – QNG zertifiziert (KfW40) – Neubau/Erstbezug in Roßfeld“ (16931_13)

Ihre Kontaktdaten

* Pflichtfelder

Ihre Ansprechpartnerin

Martina Heldmann

Frau Martina Heldmann

VR Bank Heilbronn Schwäbisch Hall eG

Tel.:
07951/408-6291
E-Mail:
martina.heldmann@vrbank-hsh.immo

Karlsplatz 1
74564 Crailsheim

Weitere Immobilien

Hochwertige Neubauwohnung mit eigenem Garten

ImmoNr: 17833 Wohnung Erdgeschoss Kauf 74592 Kirchberg an der Jagst Anzahl Zimmer: 3 Anzahl Schlafzimmer: 2 Wohnfläche: ca. 84 m²

Provisionsfrei ! Attraktive 4-Zimmer-Wohnung mit Balkon und TG-Platz in stadtnaher Wohnlage

ImmoNr: 17985 Wohnung Etagenwohnung Kauf 74564 Crailsheim Anzahl Zimmer: 4 Anzahl Schlafzimmer: 3 Wohnfläche: ca. 78 m²